Material Library
at Tsinghua University's School of Architecture
LOCATION
TSINGHUA UNIVERSITY, BEIJING, CHINA
PROJECT TYPE
INSTALLATION & EDUCATIONAL DESIGN
Status
Completed in 2013
TSINGHUA UNIVERSITY, BEIJING, CHINA
PROJECT TYPE
INSTALLATION & EDUCATIONAL DESIGN
Status
Completed in 2013
NARRATIVE
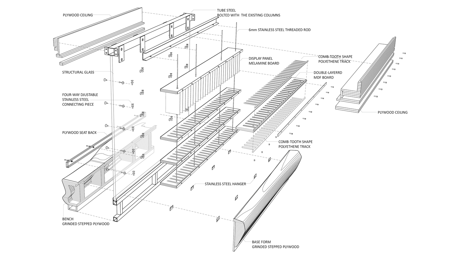
The installation functions as an educational piece to display new materails used in design industry. The renovation strategy also transformed a utilitarian elevator lobby into a space that facilitate interaction between architecture students and material samples. It simultaneously created a dynamic “facade” for the conference room behind.
The installation functions as an educational piece to display new materails used in design industry. The renovation strategy also transformed a utilitarian elevator lobby into a space that facilitate interaction between architecture students and material samples. It simultaneously created a dynamic “facade” for the conference room behind.






